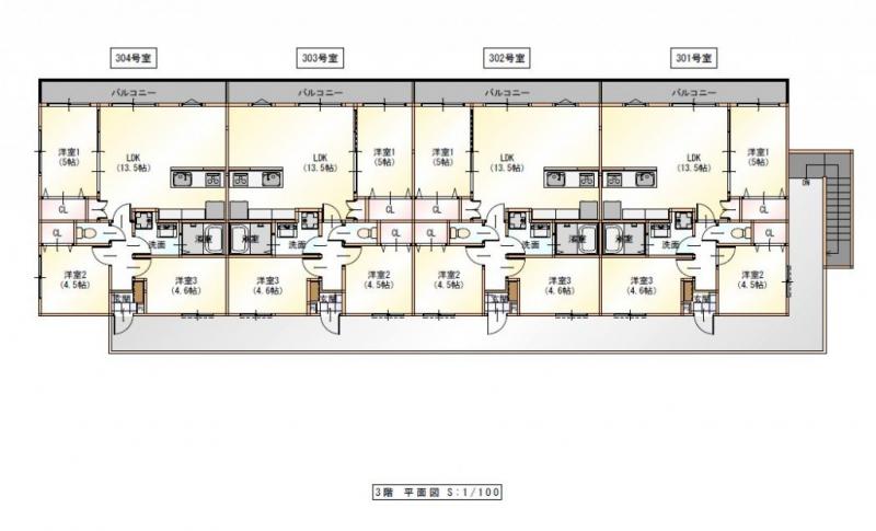
プレシャス多々良 303
インターネット使い放題、広々LDK12畳以上
| 賃料 | 8.5 万円 | 管理費 | 3,000円 |
|---|---|---|---|
| 敷金 | なし | 礼金 | 2ヶ月 |
| 間取り | 3LDK | 面積 | 60 ㎡ |
| 住所 | 福岡市東区多々良二丁目54-26 | ||
| 交通 | |||
| 種別 | アパート | 駐車場 | 空有 |
| 物件 構造 |
所在階 /階数 |
地上3階建 3階部分 | |
| 間取り 内訳 |
築年数 | 2023年12月 | |
| 主要 採光面 |
引渡し | 即時 | |
| 設備 | 最上階日当り良好閑静住宅街カウンターキッチン対面キッチンフローリング収納スペースクロゼットシューズボックス二人入居可 可高齢者 相談自動ロックTVモニタ付きインターホン防犯カメラインターホンプロパンガス 有宅配ボックス集合郵便受けインターネット使い放題トイレバス・トイレ 別室シャワー温水洗浄便座洗面所洗面台シャンプードレッサー洗面化粧台洗濯機置場室内洗濯機置場洗面所独立独立洗面脱衣所脱衣所バス ありバルコニーペット不可LDK12畳以上全居室フローリング冷房暖房エアコン | ||
| 備考 | |||
| 小学 校区 |
中学 校区 |
||
| 現況 | 空家 | 取引 態様 |
仲介 |
| 物件 番号 |
b1916341 | 有効 期限 |
2025年11月29日 |