401
| 賃料 | 36.4 万円 | 管理費 | なし |
|---|---|---|---|
| 敷金 | なし | 礼金 | 1ヶ月 |
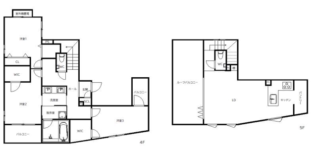
| 間取り | 3LDK | 面積 | 96.28 ㎡ |
| 住所 | 福岡市中央区 平尾三丁目 14-21 | ||
| 交通 |
西鉄天神大牟田線 西鉄平尾駅 徒歩9分 福岡市営地下鉄七隈線 薬院大通駅 徒歩11分 西鉄天神大牟田線 薬院駅 徒歩13分 |
||
| 種別 | マンション | 駐車場 | なし |
| 物件 構造 |
RC造 | 所在階 /階数 |
地上5階建 4階部分 |
| 間取り 内訳 |
築年数 | 2024年3月 | |
| 主要 採光面 |
南西 | 引渡し | |
| 設備 | 角部屋最上階閑静住宅街メゾネットシステムキッチンカウンターキッチン3口コンロ以上ガス収納スペース二人入居可 可TVモニタ付きインターホン防犯カメラインターホン都市ガスエレベータ宅配ボックス駐輪場敷地内ゴミ置き場ゴミ置き場トイレバス・トイレ 別室シャワー洗面所洗濯機置場室内洗濯機置場独立洗面脱衣所脱衣所バス ありバルコニールーフバルコニーペット相談 | ||
| 備考 | |||
| 小学 校区 |
中学 校区 |
||
| 現況 | 空家 | 取引 態様 |
仲介 |
| 物件 番号 |
b2303166 | 有効 期限 |
2026年04月17日 |