MCG鳥飼 402
| 賃料 | 16.4 万円 | 管理費 | なし |
|---|---|---|---|
| 敷金 | なし | 礼金 | 2ヶ月 |
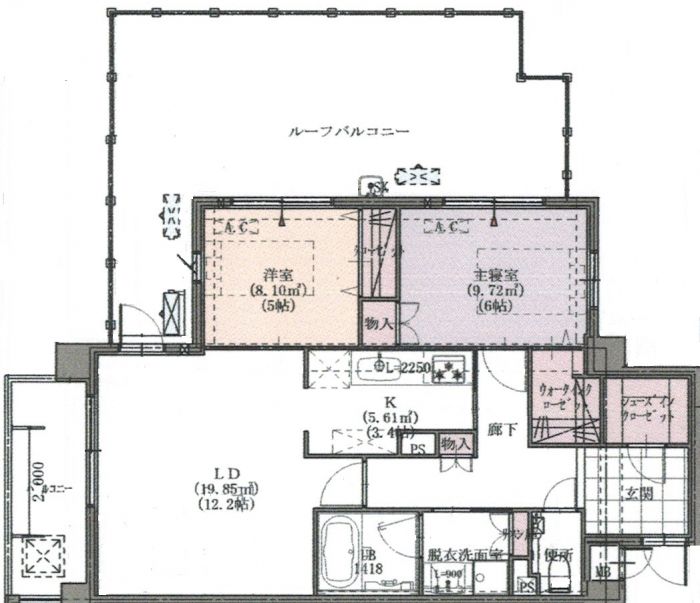
| 間取り | 2LDK | 面積 | 68.49 ㎡ |
| 住所 | 福岡市城南区 鳥飼五丁目 19-12 | ||
| 交通 | 福岡市営地下鉄七隈線 別府駅 徒歩7分 | ||
| 種別 | マンション | 駐車場 | 空有 |
| 物件 構造 |
RC造 | 所在階 /階数 |
地上6階建 4階部分 |
| 間取り 内訳 |
築年数 | 2018年3月 | |
| 主要 採光面 |
西 | 引渡し | |
| 設備 | 角部屋外観タイル張りカウンターキッチンフローリング複層ガラスウォークインクローゼットTVモニタ付きインターホン防犯カメラインターホンエレベータ宅配ボックスインターネット使い放題追焚機能トイレ温水洗浄便座洗面所洗面台洗濯機置場浴室乾燥機独立洗面脱衣所脱衣所バルコニールーフバルコニーペット不可全居室フローリングエアコン | ||
| 備考 | |||
| 小学 校区 |
中学 校区 |
||
| 現況 | 居住中 | 取引 態様 |
仲介 |
| 物件 番号 |
b2289110 | 有効 期限 |
2026年03月23日 |